- 13/10/2025
SETE DE SETEMBRO A FAVOR DO ESPORTE E LAZER
-
SETE DE SETEMBRO A FAVOR DO ESPORTE E LAZER
Assunto: Administração | Publicado em: 26/01/2022 às 19:17 | Imprimir
SETE DE SETEMBRO A FAVOR DO ESPORTE E LAZER
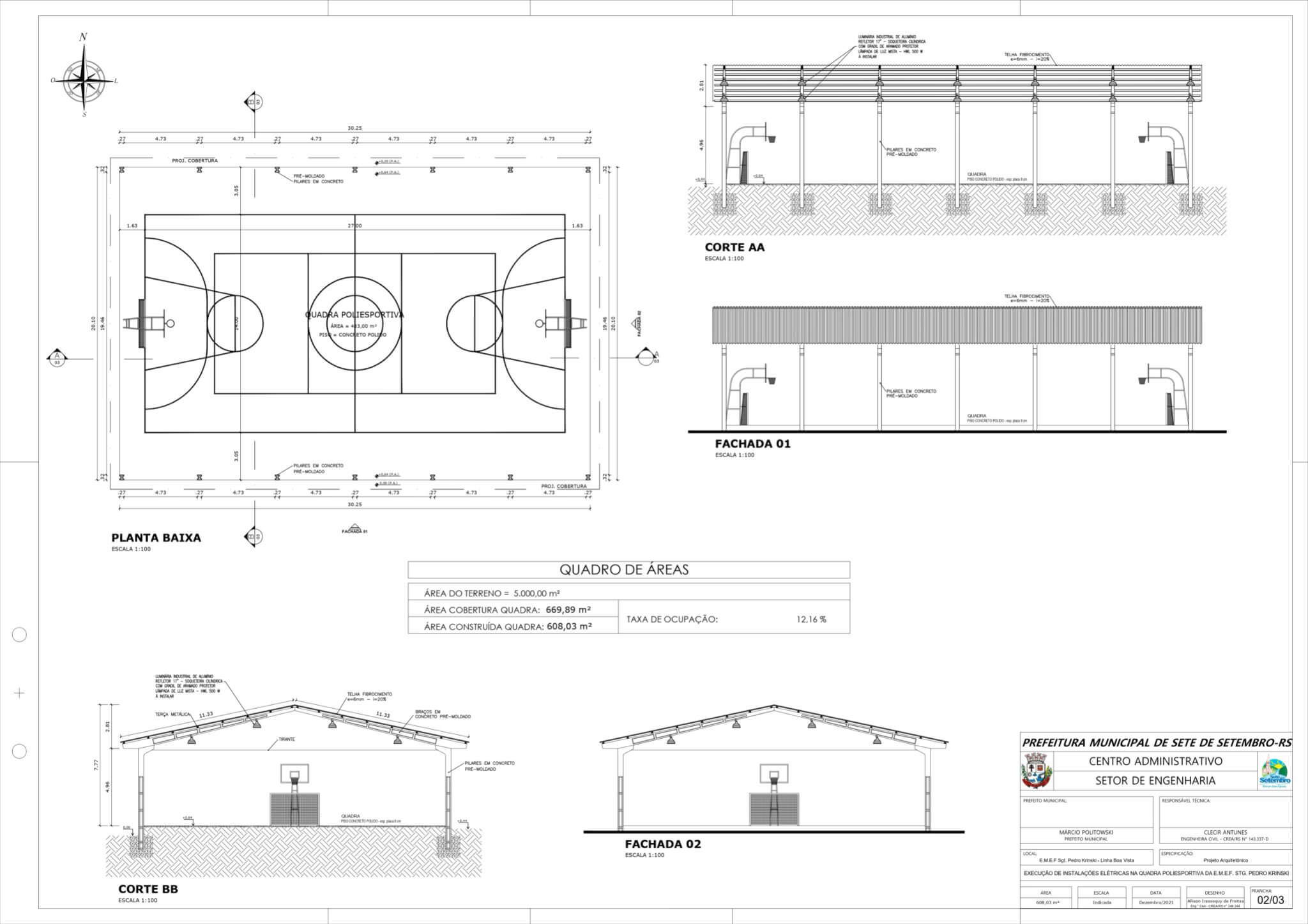
No dia 21 de janeiro de 2022, sexta-feira, o Prefeito Municipal Márcio Politowski em viagem a capital Porto Alegre, assinou junto ao Governo do Estado os convênios referentes ao Programa Avançar Esporte, no qual o Município foi contemplado em projetos cadastrados pela Secretaria Municipal de Administração e Planejamento, no Edital Nº 09/2021, destinado a Instalação e Melhorias de Iluminação em Espaços Esportivos e no Edital Nº 10/2021, destinado a Recuperação e Melhorias de Espaços Esportivos.
Os Projetos elaborados pelo Setor de Engenharia da Prefeitura, Eng.º Civil Allison Irassoquy de Freitas e Eng.ª Civil Clecir Antunes, foram analisados pela equipe técnica da Secretaria Estadual de Esporte e Lazer, a qual analisou a qualidade técnica, o mérito esportivo, relevância social e demais aspectos da proposta que corroboraram o município ser contemplado.
Os projetos contemplados foram os seguintes:
Valor Repassado pelo Estado: R$ 300.000,00.
Valor de Contrapartida do Município: R$ 258.813,63.
Valor Repassado pelo Estado: R$ 35.280,72.
Valor de Contrapartida do Município: R$ 15.200,00.
O valor total dos projetos contemplados soma R$ 609.294,35.
Com a execução dessas obras, será garantido a população setembrense o acesso a práticas esportivas e de lazer, não somente no período diurno, como também no período noturno de forma segura, proporcionando melhor saúde e qualidade de vida aos munícipes.
Últimas Notícias sobre Administração
- 13/10/2025
- 13/10/2025
- 04/09/2025








